Dettagli immobile
- Riferimento
- 62
- Contratto
- VENDITA
- Categoria
- Stabile-Palazzo
- Comune
- Roccapiemonte (SA)
- Stato
- Da ristrutturare
- Piano
- Multipiano su 4
- Terrazzo/Balcone
- Sì
- Classe Energetica
- APE: - 0 Kwh/m2a
- Indirizzo
- Via Correale, 11
84014 Nocera Inferiore (SA) - Telefono
- 081 2136934
- Email:
- nocerainferiore@fondocasa.it
Caratteristiche
Dimensione
Camere
Bagni
Box/Posto auto
Descrizione immobile
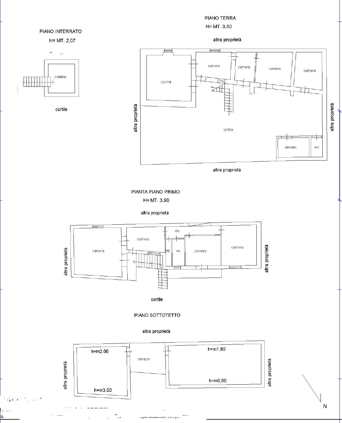
A Roccapiemonte, in una zona poco distante dal centro, proponiamo terracielo di ampia metratura. La soluzione, posta all'interno di una corte, si sviluppa su 4 livelli. Il piano terra è suddiviso in cucina e 4 camere, il piano superiore, collegato al piano terra da scala esterna, si compone di ulteriori 4 camere con bagno e ripostiglio. Il piano sottotetto si suddivide in due ambienti e terrazzo. Completano il tutto cantina al piano interrato, ampio cortile di 110 mq circa e piccolo locale deposito con bagno. Lo stabile, da ristrutturare, grazie alla cospicua metratura e alla sua disposizione, si presta alla realizzazione sia di un'unica soluzione che di due appartamenti indipendenti.
Dove si trova l'immobile?

Altri immobili proposti dall'agenzia
157 - Appartamento
- Superficie
- 110 m2
- Bagni
- 2
- Camere
- 2
- Box/posto auto
- 1
134 - Appartamento
- Superficie
- 146 m2
- Bagni
- 2
- Camere
- 3
- Box/posto auto
- 2
155 - Casa Semindipendente
- Superficie
- 75 m2
- Bagni
- 2
- Camere
- 2
- Box/posto auto
- 0