Varazze

Via Murta

Richiesta: 430.000 €

Dettagli immobile

Riferimento
F167-133
Contratto
VENDITA
Categoria
Casa indipendente
Comune
Varazze (SV)
Zona
Casanova
Stato
Buone condizioni
Riscaldamento
Autonomo
Piano
Multipiano su 2
Terrazzo/Balcone
Box/Posto auto
Classe Energetica
APE: G - 201.02 Kwh/m2a
CRAY-HOME Srl

019 9121289

  Dichiaro di aver letto e compreso l'Informativa privacy
Indirizzo
Via Malocello, 60
17019 Varazze (SV)
Telefono
019 9121289
WhatsApp
3455591875
Email:
varazze@fondocasa.com

Caratteristiche

Dimensione
130 m2
Camere
3
Bagni
1
Box/Posto auto

Descrizione immobile

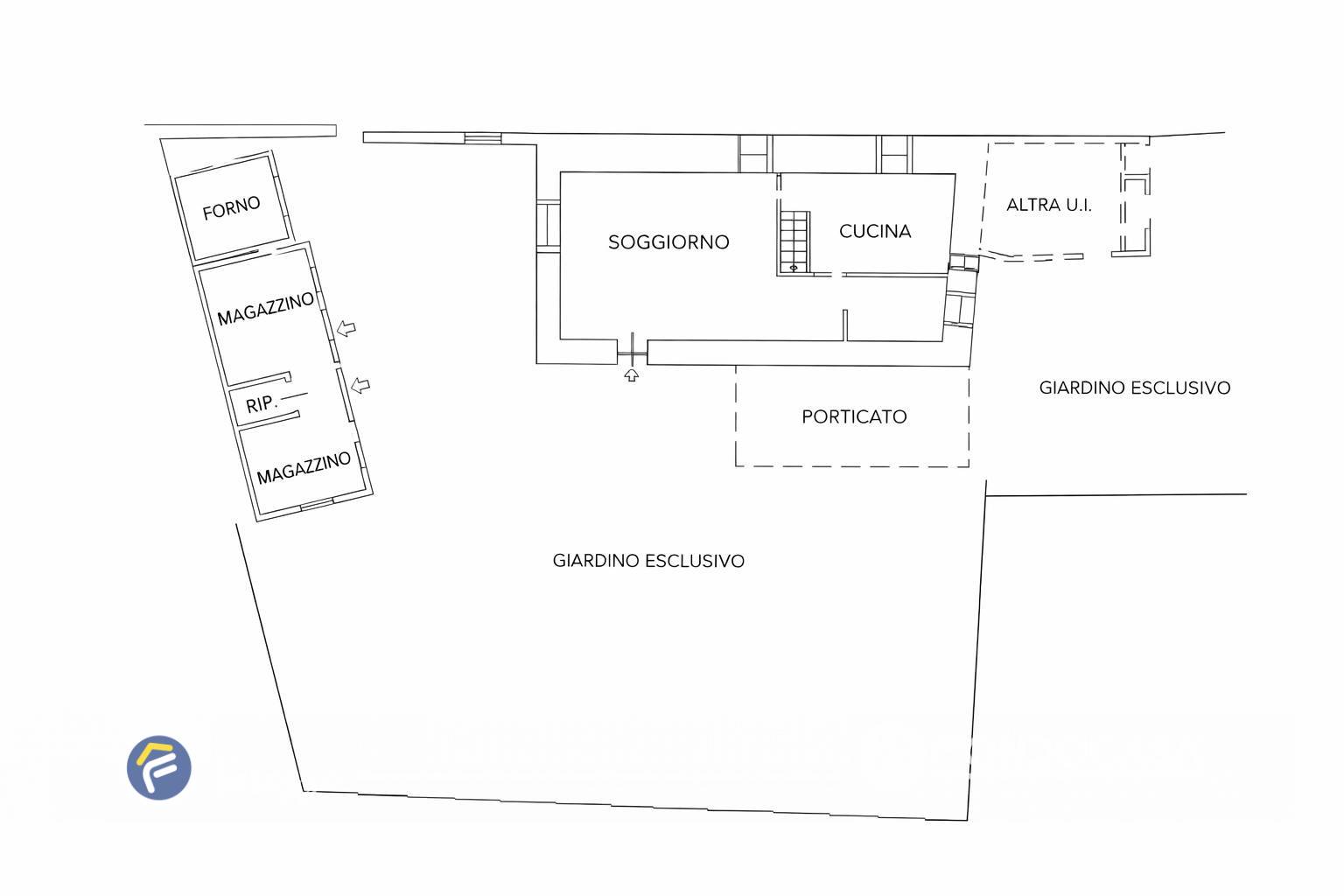
CASA INDIPENDENTE CON GIARDINO E POSTO AUTO

A Casanova, in posizione tranquilla e riservata a circa 3 km dal centro, proponiamo in vendita una proprietà indipendente immersa nel verde, luminosa e con ottima privacy.
L´abitazione si sviluppa su più livelli ed è composta da salotto con accesso diretto al giardino, cucina, tre camere da letto, bagno e terrazzo. Gli spazi sono ben distribuiti e valorizzati da materiali naturali come travi in legno a vista e parquet nelle camere, che donano un´atmosfera calda e accogliente. Sono presenti inoltre comodi ripostigli ricavati negli spazi della casa.

La zona notte, al piano superiore, ospita tre ampie e luminose camere da letto, collegate al giardino tramite un terrazzo con scale esterne. Il piano è raggiungibile anche da una caratteristica scala interna in stile "marinaio".

All´esterno, la proprietà è arricchita da un curato giardino in stile ligure con piante di limoni e un tipico pozzo, oltre a un capanno attrezzato per pranzi e cene all´aperto. La casa gode di ottima esposizione solare e comfort abitativo grazie alla libertà su quattro lati.

Completa la proprietà un comodo posto auto adiacente alla casa, protetto da dissuasore.
Soluzione ideale come prima casa, casa vacanze o investimento, perfetta per chi cerca indipendenza, spazi esterni vivibili e il fascino della tradizione ligure a pochi minuti dai servizi.

Contattaci allo 019.912.12.89 o per email varazze@fondocasa.com per maggiori informazioni e per fissare il tuo appuntamento.






Altri immobili proposti dall'agenzia

VENDITA

F167-521 - Appartamento

450.000 €
Superficie
94 m2
Bagni
1
Camere
2
Box/posto auto
0
Dettagli immobile
VENDITA

F167-287 - Casa Semindipendente

289.000 €
Superficie
108 m2
Bagni
2
Camere
2
Box/posto auto
1
Dettagli immobile
VENDITA

F167-584 - Appartamento

649.000 €
Superficie
136 m2
Bagni
2
Camere
2
Box/posto auto
1
Dettagli immobile