Dettagli immobile
- Riferimento
- 480k
- Contratto
- VENDITA
- Categoria
- Locale Commerciale
- Comune
- Quarrata (PT)
- Zona
- La Catena
- Terrazzo/Balcone
- No
- Classe Energetica
- APE: G - 0 Kwh/m2a
- Indirizzo
- Via Montalbano, 328
51039 Quarrata (PT) - Telefono
- 0573775848
- Email:
- quarrata@fondocasa.it
Caratteristiche
Dimensione
Camere
Bagni
Box/Posto auto
Descrizione immobile
Quarrata - Località Catena | Via Vecchia Fiorentina
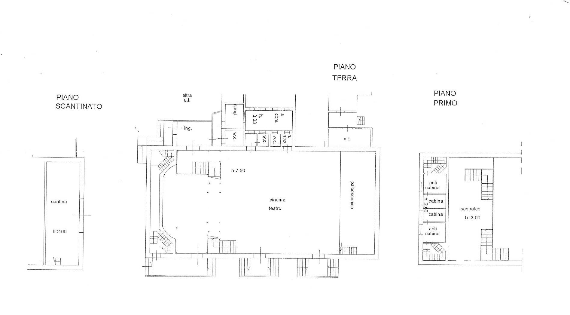
Superficie totale: 600 mq
Teatro, circolo ricreativo e appartamento al primo piano
Appartamento e circolo già locati a EUR1.800/mese (rendita annua EUR21.600)
Ampio spazio esterno per parcheggio privato
Possibilità concreta di riconversione in attività commerciali o, in alternativa, in RSA o struttura socio-sanitaria
Nel cuore della zona Catena di Quarrata, lungo una delle vie più riconoscibili e trafficate del territorio, proponiamo in vendita un complesso immobiliare di 600 mq con grande potenziale di sviluppo e rendita già attiva.
La proprietà comprende:
- Un appartamento al primo piano e un circolo ricreativo attualmente affittati, con un canone complessivo di EUR1.800 al mese
- Un teatro indipendente, attualmente non locato, che rappresenta lo spazio con maggior margine di valorizzazione
- Resede frontale ad uso parcheggio, elemento essenziale per eventuale riconversione a uso pubblico, sanitario o commerciale
Punti di forza:
- Redditività immediata grazie a contratti attivi su due unità
- Teatro disponibile per ulteriori progetti commerciali, culturali o assistenziali
- Ampio spazio esterno per posteggi o accesso mezzi
- Posizione strategica e facilmente raggiungibile
ð"Y"© Per ricevere la documentazione completa, planimetrie o fissare un appuntamento senza impegno
Fondocasa Quarrata
Dove si trova l'immobile?

Altri immobili proposti dall'agenzia
VENDITA
javello - Casa indipendente
170.000 €
- Superficie
- 160 m2
- Bagni
- 2
- Camere
- 3
- Box/posto auto
- 0
VENDITA
PESCIA110 - Appartamento
110.000 €
- Superficie
- 67 m2
- Bagni
- 1
- Camere
- 2
- Box/posto auto
- 2
VENDITA
bargi00 - Casa indipendente
210.000 €
- Superficie
- 86 m2
- Bagni
- 1
- Camere
- 2
- Box/posto auto
- 1