Dettagli immobile
- Riferimento
- F142-4282
- Contratto
- VENDITA
- Categoria
- Casa indipendente
- Comune
- Pavia (PV)
- Stato
- Ristrutturato
- Riscaldamento
- Autonomo
- Piano
- Su due livelli su 2
- Terrazzo/Balcone
- Sì
- Classe Energetica
- APE: D - 164.9 Kwh/m2a
- Indirizzo
- Via XX Settembre, 40/A
27100 PAVIA (PV) - Telefono
- 0382 415854
- Email:
- pavia@fondocasa.it
Caratteristiche
Dimensione
Camere
Bagni
Box/Posto auto
Descrizione immobile
Immerso nella tranquillità della campagna lombarda, proponiamo in vendita un lussuoso casale pronto ad accogliere chi voglia godere della pace e della bellezza della natura circostante.
Costruito nel lontano 1930, è stato oggetto di recente e radicale ristrutturazione che ha saputo preservare il fascino e il carattere originale della cascina, arricchendola di moderni comfort e finiture di pregio.
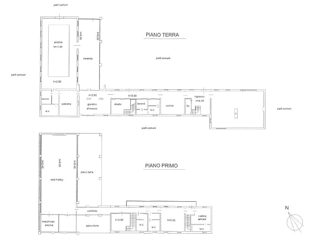
La struttura architettonica del complesso è costituita da due corpi abitativi principali: una Casa Padronale su due livelli e due alloggi rispettivamente per ospiti e per custode.
Ci accolgono ambienti eleganti e luminosi impreziositi da travi in legno a vista, da ampie vetrate e parquet pregiati che donano un´atmosfera di grande raffinatezza.
La disposizione delle camere e dei locali permette una perfetta distribuzione degli spazi e una vivibilità ottimale per ogni esigenza; una piscina riscaldata e condizionata, oltre a zona wellness ed un giardino d´inverno rendono unica la dimora. La soluzione si compone inoltre di un maneggio per cavalli ben accessoriato, costituito da 10 box.
L' edificio è dotato di un sistema di riscaldamento autonomo ad aria/elettrico in pompa di calore, impianto fotovoltaico, pozzo e impianto di depurazione dell'acqua potabile.
Incornicia il casolare una vasta area verde di circa 3.000 mq., offrendo un ampio giardino privato ideale per chi ama la vita all'aria aperta e la natura e la possibilità di coltivare un orto e di fruire di un parcheggio interno.
Questa prestigiosa residenza di campagna rappresenta un'opportunità unica per chi desidera vivere in un ambiente sereno e immerso nella natura, senza rinunciare ai comfort e alla vicinanza alla città di Pavia e al raccordo autostradale.
Dove si trova l'immobile?

Altri immobili proposti dall'agenzia
F142-4319 - Appartamento
- Superficie
- 104 m2
- Bagni
- 1
- Camere
- 2
- Box/posto auto
- 1
F142-4318 - Appartamento
- Superficie
- 63 m2
- Bagni
- 1
- Camere
- 1
- Box/posto auto
- 0
F142-4320 - Attico-Mansarda
- Superficie
- 164 m2
- Bagni
- 2
- Camere
- 3
- Box/posto auto
- 0