Dettagli immobile
- Riferimento
- 60
- Contratto
- VENDITA
- Categoria
- Villa singola
- Comune
- Onore (BG)
- Terrazzo/Balcone
- No
- Classe Energetica
- APE: - 0 Kwh/m2a
- Indirizzo
- Via Donizzetti, 33
24020 Castione della Presolana (BG) - Telefono
- 0346962426
- Email:
- castionedellapresolana@fondocasa.it
Caratteristiche
Dimensione
Camere
Bagni
Box/Posto auto
Descrizione immobile
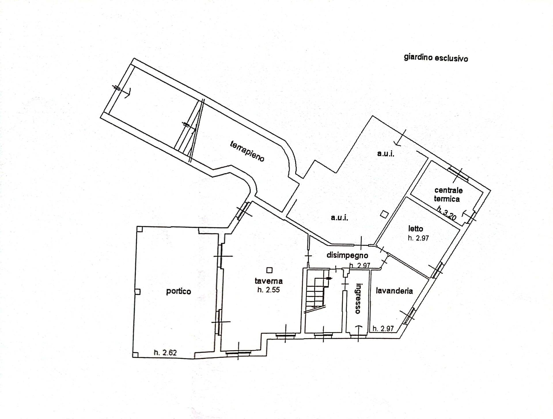
Esclusiva villa, situata nel cuore di Onore, ideale per chi cerca un´abitazione spaziosa e immersa nella natura. La proprietà si sviluppa su due piani, offrendo ampi e luminosi spazi interni e una disposizione funzionale, perfetta per famiglie numerose o per chi desidera vivere in completo comfort.
Composta da un ampio giardino che circonda la villa, ideale per trascorrere piacevoli momenti all'aperto, offrendo totale privacy e tranquillità.
La villa è situata in una zona tranquilla, lontana dal caos ma ben collegata ai principali servizi e infrastrutture, perfetta per chi desidera un abitazione elegante senza rinunciare alla comodità.
Contattaci per maggiori informazioni al numero 0346962426
Dove si trova l'immobile?

Altri immobili proposti dall'agenzia
74 - Appartamento
- Superficie
- 85 m2
- Bagni
- 2
- Camere
- 2
- Box/posto auto
- 0
79 - Appartamento
- Superficie
- 72 m2
- Bagni
- 1
- Camere
- 2
- Box/posto auto
- 0
104 - Attico-Mansarda
- Superficie
- 116 m2
- Bagni
- 1
- Camere
- 2
- Box/posto auto
- 1