Noli

Via IV Novembre

Richiesta: 780.000 €

Dettagli immobile

Riferimento
F10-026
Contratto
VENDITA
Categoria
Appartamento
Comune
Noli (SV)
Stato
Buone condizioni
Riscaldamento
Autonomo
Piano
3 su 4
Ascensore
Terrazzo/Balcone
Classe Energetica
APE: G - 0 Kwh/m2a
Cray-home srl

019 2046171

  Dichiaro di aver letto e compreso l'Informativa privacy
Indirizzo
Via Colombo, 11
17026 Noli (SV)
Telefono
019 2046171
WhatsApp
3475216642
Email:
noli@fondocasa.it

Caratteristiche

Dimensione
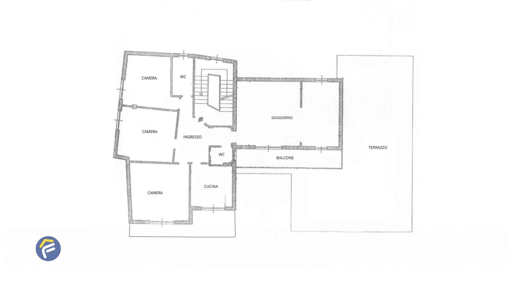
150 m2
Camere
3
Bagni
2
Box/Posto auto
No

Descrizione immobile

PENTALOCALE FRONTE MARE CON TERRAZZO VISTA MARE

In posizione impareggiabile, a pochi passi dal centro e dalle spiagge di Noli, pentalocale affacciato sul mare con terrazzo vivibile di 40 mq con vista sul golfo.
Circa 150 mq distribuiti tra soggiorno, cucina, tre camere da letto e doppi servizi finestrati. E' presente anche un lungo balcone che contorna i due lati del palazzo.
La quadrupla esposizione rende gli spazi arieggiati e luminosi in tutte le stagioni.
L'ampio sfogo esterno è ciò che rende questa proposta davvero unica.

Un'occasione rara, quasi introvabile sul mercato, per chi cerca qualcosa di irripetibile.

Dove si trova l'immobile?






Altri immobili proposti dall'agenzia

VENDITA

F10-037 - Appartamento

279.000 €
Superficie
84 m2
Bagni
1
Camere
1
Box/posto auto
1
Dettagli immobile
VENDITA

F10-948 - Casa Semindipendente

530.000 €
Superficie
140 m2
Bagni
2
Camere
3
Box/posto auto
1
Dettagli immobile
VENDITA

F10-021 - Villetta bifamiliare

750.000 €
Superficie
200 m2
Bagni
2
Camere
5
Box/posto auto
2
Dettagli immobile