Dettagli immobile
- Riferimento
- 16
- Contratto
- VENDITA
- Categoria
- Casa indipendente
- Comune
- Diso (LE)
- Zona
- Marittima
- Stato
- Buone condizioni
- Piano
- 1 su 2
- Terrazzo/Balcone
- Sì
- Box/Posto auto
- Sì
- Classe Energetica
- APE: E - 0 Kwh/m2a
- Indirizzo
- Via Caduti, 2
73024 MAGLIE (LE) - Telefono
- Email:
- maglie@fondocasa.it
Caratteristiche
Dimensione
Camere
Bagni
Box/Posto auto
Descrizione immobile
PUGLIA - SALENTO - LECCE - DISO - Marittima
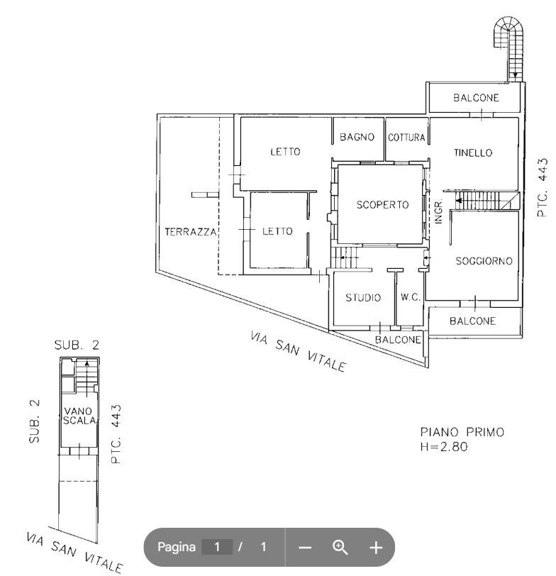
Nell'incantevole frazione di Marittima, proponiamo in vendita questo ampio fabbricato composto a piano terra da posto auto coperto, deposito con bagno e giardino retrostante di circa 50 mq; mentre posta al piano primo un'abitazione che sviluppa una metratura di 160 mq circa. Il fabbricato è posto in una zona ottimale, vicina al centro e alle comodità del paese, ma anche ai comuni limitrofi, permettendo in ogni caso di raggiungere il mare in pochissimi minuti. L´abitazione, caratterizzata da una singolare luminosità dovuta alla sua esposizione, è posta al piano primo, raggiungibile per mezzo di una comoda scala e si compone di ingresso, sala da pranzo con camino e con veranda retrostante adibita a lavanderia e dalla quale, tramite una scala scoperta, si può accedere al giardino retrostante posto al piano terra. Poi abbiamo un cucinotto con un piccolo ripostiglio, uno studio che potrebbe essere anche una comoda camera da letto, due camere da letto di cui una matrimoniale con bagno in camera, un bagno ed un ampio e luminoso salone soggiorno con balcone. Dal corridoio si accede all´ampissimo terrazzo a livello, capace di assicurare una vivibilità anche dell´esterno, garantendo comodità e riservatezza al tempo stesso e dal quale si può godere di una bellissima vista panoramica sino al mare. Di proprietà esclusiva anche l´area solare, raggiungibile da una scala esterna in ferro. L´immobile si presenta in ottimo stato e non necessità di nessun intervento.

Altri immobili proposti dall'agenzia
33 - Terreno Agricolo
- Superficie
- 5419 m2
- Bagni
- 0
- Camere
- 0
- Box/posto auto
- 0
38 - Casa indipendente
- Superficie
- 305 m2
- Bagni
- 5
- Camere
- 6
- Box/posto auto
- 2
37 - Casa indipendente
- Superficie
- 112 m2
- Bagni
- 2
- Camere
- 3
- Box/posto auto
- 0