Dettagli immobile
- Riferimento
- APPARTAMENTI IN VENDITA
- Contratto
- VENDITA
- Categoria
- Appartamento
- Comune
- Cologno Monzese (MI)
- Stato
- Ristrutturato
- Riscaldamento
- Autonomo
- Piano
- Su due livelli su 6
- Terrazzo/Balcone
- No
- Spese condominiali
- 50 euro/mese
- Classe Energetica
- APE: - 0 Kwh/m2a
- Indirizzo
- Via Ronchi, 11
20132 MILANO (MI) - Telefono
- 02 33295067
- Email:
- mi.udine@fondocasa.it
Caratteristiche
Dimensione
Camere
Bagni
Box/Posto auto
Descrizione immobile
APPARTAMENTI NUOVA REALIZZAZIONE
Sei alla ricerca di un appartamento di nuova costruzione in una zona ben servita?
Fondocasa Milano Udine propone in vendita diverse opzioni:
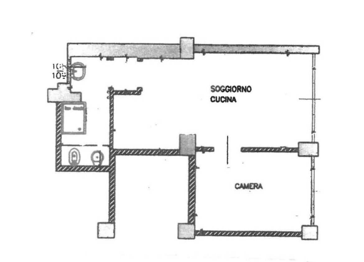
Appartamento A: Bilocale di 45mq caratterizzato da, ingresso su soggiorno ed angolo cottura a vista, camera da letto e bagno finestrato dotato di box doccia.
Richiesta: 150.000
Appartamento B: Trilocale di 65mq suddiviso su due livelli, con accesso indipendente da cortile privato di 30mq c.a. , caratterizzato da ingresso in ampio soggiorno con cucina a vista, camera , bagno finestrato con box doccia , al piano inferiore è presente un'ulteriore camera da poter adibire a proprio piacimento.
Richiesta 180.000
Appartamento C: Bilocale di 70mq suddiviso su due livelli, con accesso indipendente da cortile privato di 40mq c.a. , caratterizzato da ingresso in soggiorno con cucina a vista, al piano inferiore disimpegno, bagno finestrato dotato di box doccia ed ampia camera di 30mq.
Richiesta 190.000
Nelle immediate vicinanze, si può godere della presenza di bar, farmacie, supermercati, palestre, banche e ristoranti. La zona è ben servita anche grazie alla vicinanza dei mezzi di trasporto, ci troviamo infatti a pochi minuti e piedi di distanza dalla linea M2 Cologno Centro ed a 300m dalla fermata del bus di linea 707 che consente di raggiungere facilmente svariati luoghi di interesse della città.
PER INFO E APPUNTAMENTI CONTATTACI AL NUMERO 0233295067
Dove si trova l'immobile?

Altri immobili proposti dall'agenzia
Negozio e magazzino zona Cimiano - Crescenzago - Locale Commerciale
- Superficie
- 65 m2
- Bagni
- 1
- Camere
- 0
- Box/posto auto
- 0
Ampio bilocale zona Cimiano - Crescenzago - Appartamento
- Superficie
- 70 m2
- Bagni
- 1
- Camere
- 1
- Box/posto auto
- 0
Box Doppio zona Cimiano - Box-Posto auto
- Superficie
- 28 m2
- Bagni
- 0
- Camere
- 0
- Box/posto auto
- 0