Milano

Via Sardegna

Richiesta: 725.000 €

Dettagli immobile

Riferimento
V2LOC-SARDEGNA
Contratto
VENDITA
Categoria
Appartamento
Comune
Milano (MI)
Zona
Washington
Stato
Ristrutturato
Riscaldamento
Centralizzato
Piano
5 su 5
Ascensore
Terrazzo/Balcone
Spese condominiali
250 euro/mese
Classe Energetica
APE: F - 219.51 Kwh/m2a
G.S.P. s.r.l. GRUPPO SVILUPPO PAVESE

02 58124870

  Dichiaro di aver letto e compreso l'Informativa privacy
Indirizzo
Via Giovanni Rasori, 7
20145 MILANO (MI)
Telefono
02 58124870
Email:
mi.corsomagenta@fondocasa.it

Caratteristiche

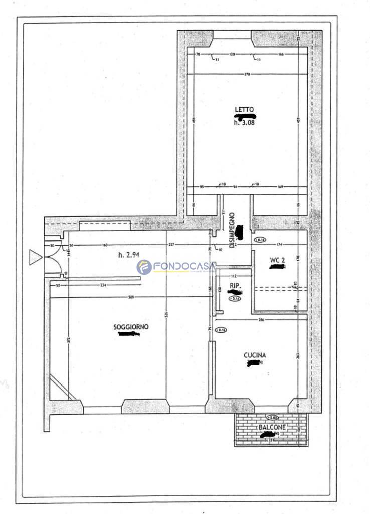
Dimensione
73 m2
Camere
1
Bagni
1
Box/Posto auto
No

Descrizione immobile

L' affiliato Fondocasa C.so Magenta propone in vendita un ampio bilocale libero subito e completamente ristrutturato a nuovo veramente bello, situato all' ultimo piano di un palazzo Liberty interamente ristrutturato nel 2024 sia di facciate che di parti comune interne. Il palazzo ha un ingresso molto di rappresentanza, un cortile interno con lo spazio per il parcheggio di biciclette. L' appartamento è luminosissimo, non confina con altre unità ed ha una bella vista sui tetti di Milano e permette di vedere la Madonnina. L' appartamento è biesposto, interamente ristrutturato, con impianto canalizzato di condizionamento freddo e caldo. Infissi appena cambiati con doppi vetri e persiane di ultima generazione, garantiscono nessun rumore e nessuna dispersione termica. E' presente una cucina abitabile fatta su misura della ditta Boffi con top e contro top in marmo di Carrara e tutti gli elettrodomestici ad incasso, balconcino, lavanderia separata capiente e organizzata, soggiorno con doppia finestra e camino, disimpegno, bagno e camera da letto di grande metratura, armadiature a muro importanti, armadio di design a 10 ante fatto su misura, scarpiera a muro e soppalco di stoccaggio aereo.
In soggiorno è presente un video citofono appena cambiato, una doppia porta d' ingresso che richiama lo stile originale della casa, oltre ad armadi guardaroba e non solo a muro con porte ristrutturate dell' epoca storica della casa, in tutta la casa è presente parquet a spina di pesce tranne la cucina, lavanderia, disimpegno e bagno che hanno delle marmette dipinte a mano. L' immobile ha di pertinenza una cantina di piccole dimensioni e un solaio in corrispondenza dell' appartamento di generose dimensioni. Il palazzo è a 3 minuti a piedi da due fermate della metropolitana rossa ed ha la fermata del bus a meno di 10 metri dal portone di casa. Se siete alla ricerca di un ampio bilocale all' ultimo piano, silenzioso e con una veduta fantastica a due passi dalla metro, questo è sicuramente quello che state cercando!!! Ottimo anche per investimento come immobile a reddito. Per ulteriori informazioni e pianificare visite chiamare direttamente chi segue la residenza, Sig. Giovanni 3316709526 vi aspettiamo!!!

Dove si trova l'immobile?






Altri immobili proposti dall'agenzia

VENDITA

V-CHALET-CORT.D'AMP - Villa singola

8.500.000 €
Superficie
390 m2
Bagni
10
Camere
11
Box/posto auto
1
Dettagli immobile
VENDITA

V4LOC-PETRAR - Appartamento

2.350.000 €
Superficie
230 m2
Bagni
4
Camere
3
Box/posto auto
0
Dettagli immobile
VENDITA

V2LOC-CRE - Appartamento

175.000 €
Superficie
50 m2
Bagni
1
Camere
1
Box/posto auto
0
Dettagli immobile