Pietrasanta

Via Tonfano, 182

Richiesta: 550.000 €

Dettagli immobile

Riferimento
fdm625
Contratto
VENDITA
Categoria
Villa a schiera
Comune
Pietrasanta (LU)
Zona
Marina di Pietrasanta
Stato
Ottime condizioni
Riscaldamento
Autonomo
Piano
Piano terra su 1
Terrazzo/Balcone
Box/Posto auto
Classe Energetica
APE: G - 186.89 Kwh/m2a
CRC Versilia S.r.l.

0584 1716859

  Dichiaro di aver letto e compreso l'Informativa privacy
Indirizzo
Via Ponchielli, 17
55042 Forte Dei Marmi (LU)
Telefono
0584 1716859
Email:
fortedeimarmi@fondocasa.it

Caratteristiche

Dimensione
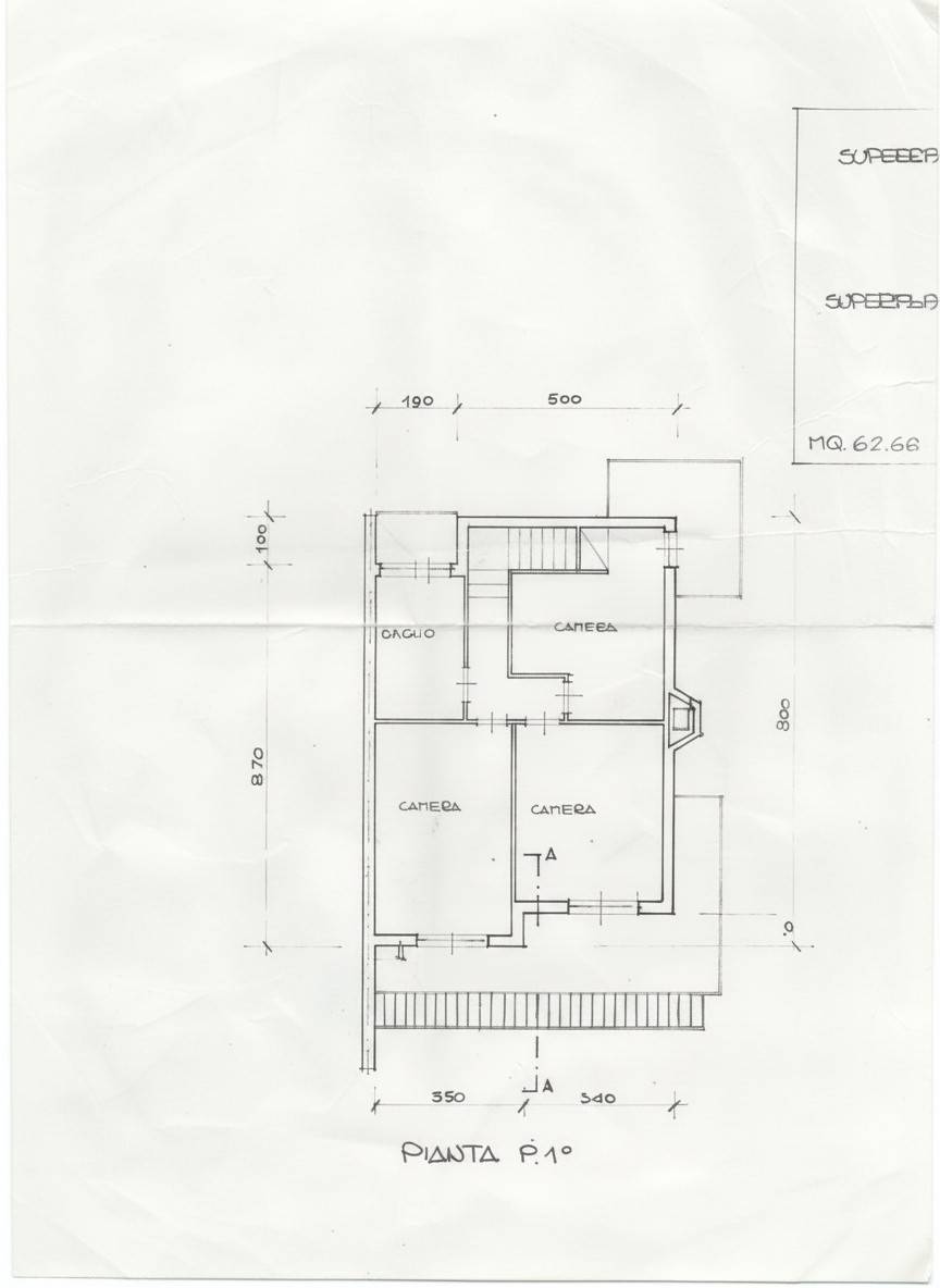
140 m2
Camere
4
Bagni
2
Box/Posto auto

Descrizione immobile

A poca distanza dalle spiagge di Tonfano proponiamo villetta a schiera di testa, libera su tre lati, luminosa e circondata da un giardino privato ideale per vivere all´aperto e di facile manutenzione.
L´immobile si sviluppa su due piani: a quello rialzato troviamo un accogliente soggiorno, cucina separata, prima camera matrimoniale,seconda camera da letto e bagno, mentre al primo piano troviamo: soggiorno con cucina a vista e spazioso balcone su due lati, terza camera matrimoniale, quarta camera matrimoniale e bagno padronale.
Completano la proprietà un comodo posto auto coperto interno e la possibilità di sfruttare i due piani come unità indipendenti, soluzione perfetta per due famiglie o per chi cerca un investimento da mettere a reddito.
L´abitazione è stata mantenuta in ottime condizioni negli anni e garantisce spazi versatili sia come prima casa che come residenza estiva. Posizione strategica, spazi esterni e doppio accesso la rendono una proposta rara nel mercato di Tonfano.
N.B. Alcuni dati descrittivi dell'immobile, potrebbero essere solo approssimativi (esempio: spese riscaldamento, indirizzo preciso, spese condominiali e metri delle superfici) e pertanto verranno forniti in modo completo telefonicamente oppure in fase di appuntamento. Grazie.
Immobile gestito da Fondocasa Garda&Versilia.

Dove si trova l'immobile?





Video immobile


Altri immobili proposti dall'agenzia

VENDITA

fdm635 - Casa indipendente

390.000 €
Superficie
85 m2
Bagni
1
Camere
2
Box/posto auto
1
Dettagli immobile
VENDITA

fdm641 - Appartamento

210.000 €
Superficie
80 m2
Bagni
1
Camere
2
Box/posto auto
0
Dettagli immobile
VENDITA

fdm628 - Appartamento

290.000 €
Superficie
70 m2
Bagni
1
Camere
2
Box/posto auto
2
Dettagli immobile