Pescara

Via Ronchi, 93

Richiesta: 329.000 €

Dettagli immobile

Riferimento
64
Contratto
VENDITA
Categoria
Appartamento
Comune
Pescara (PE)
Zona
Zona Nord
Stato
Buone condizioni
Riscaldamento
Autonomo
Piano
1 su 0
Ascensore
Terrazzo/Balcone
Box/Posto auto
Spese condominiali
50 euro/mese
Classe Energetica
APE: E - 117.5 Kwh/m2a
DI LORETO ALESSIO

085 2013836

  Dichiaro di aver letto e compreso l'Informativa privacy
Indirizzo
Via Nicola Fabrizi, 96
65124 Pescara (PE)
Telefono
085 2013836
WhatsApp
3288913410
Email:
pescara@fondocasa.it

Caratteristiche

Dimensione
161 m2
Camere
4
Bagni
2
Box/Posto auto

Descrizione immobile

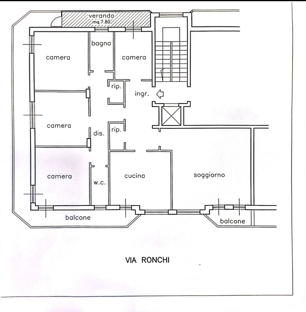
Zona Piazza Duca degli Abruzzi. Proponiamo in vendita un ampio appartamento di circa 161 mq, situato al primo piano di una palazzina di cinque piani fuori terra, dotata di ascensore, in una delle zone più richieste della Riviera Nord di Pescara, a ridosso della Strada Parco e a soli 100 metri dal mare.

L´immobile si presenta con ambienti ampi e ben distribuiti ed è composto da:
ampio ingresso, salone luminoso, cucina abitabile, disimpegno, due ripostigli,
quattro camere da letto, doppi servizi, balcone a livello su due lati e veranda chiusa adibita a lavanderia.

Completano la proprietà un garage di circa 14 mq al piano terra e un posto auto all´interno della corte condominiale.

La posizione è strategica e comodissima, vicina a tutti i principali servizi, alla pista ciclabile della Strada Parco e alla spiaggia, ideale sia come abitazione principale che uso investimento da adibire a struttura turistica ricettiva.

Dove si trova l'immobile?






Altri immobili proposti dall'agenzia

VENDITA

66 - Appartamento

179.000 €
Superficie
116 m2
Bagni
2
Camere
3
Box/posto auto
2
Dettagli immobile
VENDITA

60 - Appartamento

185.000 €
Superficie
104 m2
Bagni
2
Camere
2
Box/posto auto
0
Dettagli immobile
VENDITA

16 - Appartamento

195.000 €
Superficie
87 m2
Bagni
1
Camere
1
Box/posto auto
0
Dettagli immobile