Pietra Ligure

Via Cascione

Richiesta: 495.000 €

Dettagli immobile

Riferimento
F13-057
Contratto
VENDITA
Categoria
Attico-Mansarda
Comune
Pietra Ligure (SV)
Stato
Ottime condizioni
Riscaldamento
Autonomo
Piano
2 su 3
Ascensore
Terrazzo/Balcone
Box/Posto auto
Spese condominiali
380 euro/mese
Classe Energetica
APE: A1 - 0 Kwh/m2a
Nuova luce srl

019 626660

  Dichiaro di aver letto e compreso l'Informativa privacy
Indirizzo
Via Garibaldi, 64
17027 Pietra Ligure (SV)
Telefono
019 626660
WhatsApp
3453316569
Email:
pietracentro@fondocasa.it

Caratteristiche

Dimensione
150 m2
Camere
2
Bagni
2
Box/Posto auto

Descrizione immobile

ATTICO SU DUE LIVELLI CON TERRAZZA VISTA MARE!

In una delle zone più esclusiva di Pietra Ligure proponiamo in vendita un attico moderno e raffinato, una soluzione unica che coniuga ampi spazi, comfort di ultima generazione e una splendida vista mare!

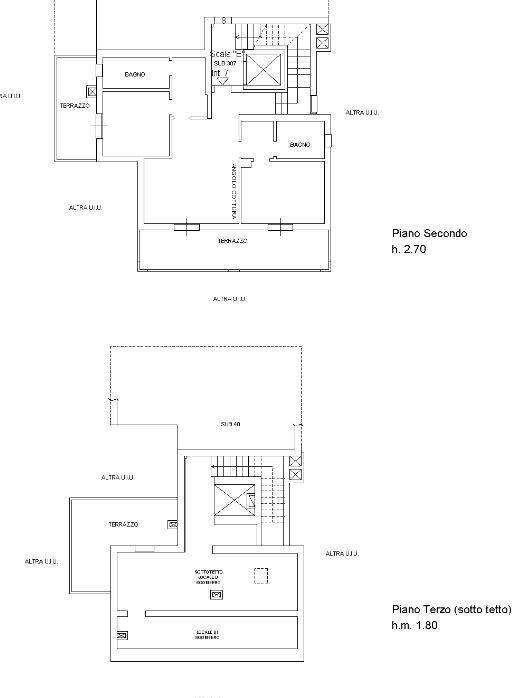
L'appartamento si sviluppa su due livelli. Al piano primo troviamo un'ampia e luminosa zona giorno affacciata su una terrazza panoramica, perfetta per pranzi all'aperto e momenti di relax, incorniciati dal blu del mare e dal profilo del paese.
Sullo stesso livello, sono presenti due camere da letto, un antibagno e due bagni finestrati.

Salendo al piano superiore troviamo due ulteriori ambienti, che ampliano la funzionalità dell'immobile offrendo comodi spazi di supporto.

Il complesso è unico nel suo genere, in classe energetica A, ed i plus offerti sono di notevole pregio: due piscine panoramiche, una per adulti ed una per bimbi, solarium vista mare, palestra e centro benessere. E' inoltre isolata termicamente ed acusticamente, costruita con materiali ecocompatibili e con impianti solari termici per la produzione di acqua calda.

Completano la proprietà una cantina e un box auto, ideali per ottimizzare gli spazi e garantire la massima comodità.

Un'abitazione esclusiva e di recente costruzione, capace di offrire un perfetto equilibrio tra modernità, comfort, posizione strategica e una vista mare mozzafiato.

Cosa stai aspettando? Contattaci allo 019.626660 o al 345.3316569 per maggiori informazioni e per fissare il tuo appuntamento.






Altri immobili proposti dall'agenzia

VENDITA

F13-062 - Casa Semindipendente

235.000 €
Superficie
190 m2
Bagni
3
Camere
3
Box/posto auto
1
Dettagli immobile
VENDITA

F13-072 - Appartamento

275.000 €
Superficie
51 m2
Bagni
1
Camere
1
Box/posto auto
2
Dettagli immobile
VENDITA

BV-09 VILLA QUIES - Appartamento

240.000 €
Superficie
45 m2
Bagni
1
Camere
1
Box/posto auto
2
Dettagli immobile