Torre del Greco

via piscopia, 58

Richiesta: 55.000 €

Dettagli immobile

Riferimento
56
Contratto
VENDITA
Categoria
Locale Commerciale
Comune
Torre del Greco (NA)
Stato
Da ristrutturare
Piano
Piano terra su 0
Terrazzo/Balcone
No
Classe Energetica
APE: G - 0 Kwh/m2a
Nicola Nigido d.i.

3937882334

  Dichiaro di aver letto e compreso l'Informativa privacy
Indirizzo
Via Pietro Mascagni, 35
80128 Napoli (NA)
Telefono
3937882334
Email:
na.vomero@fondocasa.it

Caratteristiche

Dimensione
120 m2
Camere
0
Bagni
1
Box/Posto auto
No

Descrizione immobile

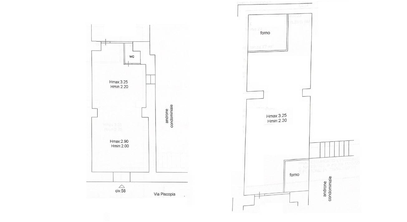
FC Hub propone in vendita a Torre del Greco, in via Piscopia 58, locale commerciale di circa 120 mq, piano terra fronte strada.
L´immobile è situato in posizione centrale e strategica, nel cuore del centro cittadino, caratterizzato da elevato passaggio pedonale e veicolare, elemento che garantisce massima visibilità e ottima esposizione commerciale.
La soluzione si presta a diverse tipologie di attività, grazie alla facilità di accesso, alla comoda fruibilità degli spazi e alla posizione su arteria principale ad alta affluenza.
Ottima opportunità di investimento per chi desidera avviare o trasferire la propria attività in una zona di forte richiamo commerciale.

Cosa aspetti? Chiamaci e fissa il tuo appuntamento per visionarlo da vicino.

Dove si trova l'immobile?






Altri immobili proposti dall'agenzia

VENDITA

63 - Villa a schiera

180.000 €
Superficie
175 m2
Bagni
2
Camere
3
Box/posto auto
0
Dettagli immobile
VENDITA

66 - Appartamento

375.000 €
Superficie
85 m2
Bagni
1
Camere
2
Box/posto auto
0
Dettagli immobile
VENDITA

68 - Attività Commerciale

170.000 €
Superficie
120 m2
Bagni
3
Camere
0
Box/posto auto
0
Dettagli immobile