Lecce

Via Ugolino Vivaldi, 12

Richiesta: 200.000 €

Dettagli immobile

Riferimento
83
Contratto
VENDITA
Categoria
Villa
Comune
Lecce (LE)
Zona
Litorale
Stato
Nuovo
Riscaldamento
Autonomo
Piano
Piano rialzato su 0
Terrazzo/Balcone
No
Box/Posto auto
Classe Energetica
APE: F - 0 Kwh/m2a
Antonio Rizzelli

0836 502435

  Dichiaro di aver letto e compreso l'Informativa privacy
Indirizzo
Via Piave, 71
73024 MAGLIE (LE)
Telefono
0836 502435
WhatsApp
3271085997
Email:
maglie@fondocasa.it

Caratteristiche

Dimensione
285 m2
Camere
2
Bagni
2
Box/Posto auto

Descrizione immobile

Villa Unifamiliare con giardino a San Cataldo - Via Ugolino Vivaldi
L´agenzia Fondocasa - sede di Maglie propone in vendita splendida villa unifamiliare situata a San Cataldo, precisamente in Via Ugolino Vivaldi, in contesto tranquillo e riservato, a brevissima distanza dal mare.
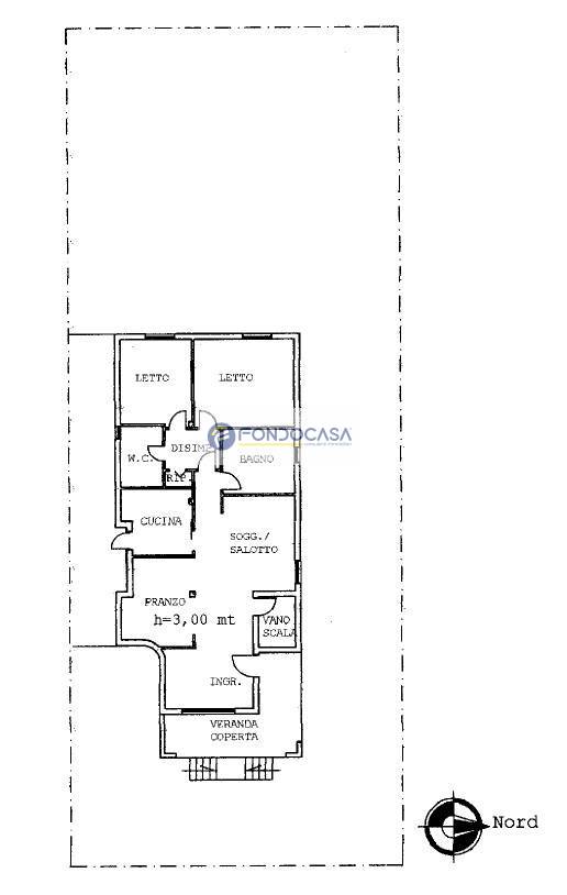
La proprietà si sviluppa su due livelli per una superficie complessiva di ampia metratura. Il piano rialzato, di 147 mq, si presenta in ottime condizioni abitative ed è pronto da vivere. L´ingresso è ampio e accogliente, la cucina è abitabile e ben organizzata, la sala da pranzo luminosa e funzionale. La zona notte comprende due spaziose camere da letto e due bagni, garantendo comfort e praticità per tutta la famiglia.
Il piano seminterrato, di 160 mq, rappresenta un grande valore aggiunto per la sua versatilità. Gli spazi consentono la realizzazione di due mini appartamenti indipendenti, soluzione ideale per chi desidera investire o ospitare familiari in totale autonomia. In alternativa, può essere utilizzato come tavernetta, studio professionale o deposito, adattandosi a qualsiasi esigenza.
Punto di forza dell´immobile è il giardino di esclusiva proprietà che circonda la villa, elemento che ne sottolinea la totale indipendenza e garantisce privacy, tranquillità e piacevoli momenti all´aperto. Ulteriore valore aggiunto è la stretta vicinanza al mare, caratteristica che rende questa soluzione particolarmente interessante sia come abitazione principale sia come casa vacanza.
Una proposta ideale per chi è alla ricerca di indipendenza, ampi spazi e posizione strategica a pochi passi dal mare.
Per maggiori informazioni o per fissare una visita, contatta Fondocasa Maglie. Saremo lieti di accompagnarti nella scelta della tua nuova casa.

Dove si trova l'immobile?






Altri immobili proposti dall'agenzia

VENDITA

90 - Appartamento

70.000 €
Superficie
113 m2
Bagni
2
Camere
3
Box/posto auto
0
Dettagli immobile
VENDITA

67 - Casa indipendente

49.000 €
Superficie
135 m2
Bagni
1
Camere
2
Box/posto auto
0
Dettagli immobile
VENDITA

80 - Casa indipendente

37.000 €
Superficie
120 m2
Bagni
2
Camere
3
Box/posto auto
0
Dettagli immobile