Maglie

Via Salvatore Fitto , 43

Richiesta: 154.000 €

Dettagli immobile

Riferimento
86
Contratto
VENDITA
Categoria
Appartamento
Comune
Maglie (LE)
Stato
Ristrutturato
Riscaldamento
Autonomo
Piano
1 su 1
Terrazzo/Balcone
No
Classe Energetica
APE: - 0 Kwh/m2a
Antonio Rizzelli

0836 502435

  Dichiaro di aver letto e compreso l'Informativa privacy
Indirizzo
Via Piave, 71
73024 MAGLIE (LE)
Telefono
0836 502435
WhatsApp
3271085997
Email:
maglie@fondocasa.it

Caratteristiche

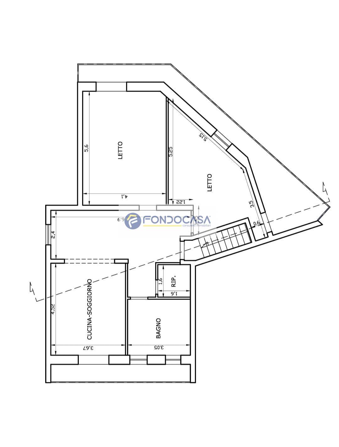
Dimensione
120 m2
Camere
2
Bagni
1
Box/Posto auto
No

Descrizione immobile

ð"Y´Z Gioiello Urbano: Indipendente, Ristrutturato e "Chiavi in Mano"Cerchi un appartamento dove l´unica cosa da fare è girare la chiave nella toppa?
Nel cuore pulsante della splendida città di Maglie, noi di FONDOCASA MAGLIE proponiamo in vendita un esclusivo appartamento indipendente al primo piano, appena sottoposto a una ristrutturazione integrale e curata nei minimi dettagli. Una soluzione che coniuga l'indipendenza di una casa singola con la comodità del centro.
'oe¨ Caratteristiche Principali

  • Stato Immobile: Totalmente ristrutturato (Impianti nuovi, infissi di ultima generazione, porta blindata).
  • Luminosità Straordinaria: Grazie alla tripla esposizione, ogni ambiente è inondato di luce naturale.
  • Zona Living: Ampio open space moderno e accogliente, dotato di ogni comfort e impreziosito da una splendida cucina su misura.
  • Zona Notte: Due camere da letto matrimoniali, eccezionalmente grandi e ariose.
ð"YOE¿ Spazi Esterni e Servizi
  • Doppio Affaccio: Un balcone funzionale sul retro (zona cucina) e un ampio balcone angolare a mo' di terrazzino che abbraccia le camere da letto, perfetto per i tuoi momenti di relax all'aperto.
  • Il Bagno: Una vera sala da bagno, spaziosa e rifinita, completata da un utilissimo ripostiglio/lavanderia.
  • Lastrico Solare: Di proprietà esclusiva, ideale per creare un solarium privato o un giardino pensile con vista sulla città.
ð"Y  Perché sceglierlo?
Zero Stress: Viene venduto completamente arredato con mobili di design e pronto all'uso immediato.
Posizione Strategica: Sei in una zona centralissima, a pochi passi da negozi, uffici e servizi, ma con l'indipendenza di non avere nessuno sopra di te.
Efficienza: Infissi nuovi e impianti certificati garantiscono comfort termico e risparmio energetico.
-Da non dimenticare la possibilità di avere un box di pertinenza da accorpare alla proprietà.Non lasciarti sfuggire questa opportunità unica! Contattaci subito per una visita!

Dove si trova l'immobile?






Altri immobili proposti dall'agenzia

VENDITA

90 - Appartamento

70.000 €
Superficie
113 m2
Bagni
2
Camere
3
Box/posto auto
0
Dettagli immobile
VENDITA

67 - Casa indipendente

49.000 €
Superficie
135 m2
Bagni
1
Camere
2
Box/posto auto
0
Dettagli immobile
VENDITA

80 - Casa indipendente

37.000 €
Superficie
120 m2
Bagni
2
Camere
3
Box/posto auto
0
Dettagli immobile