Sesto San Giovanni

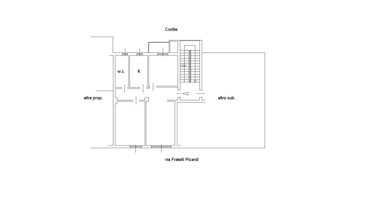
Via Fratelli Picardi, 232

Richiesta: 250.000 €

Dettagli immobile

Riferimento
NE092
Contratto
VENDITA
Categoria
Appartamento
Comune
Sesto San Giovanni (MI)
Stato
Buone condizioni
Riscaldamento
Centralizzato
Piano
5 su 6
Ascensore
Terrazzo/Balcone
Box/Posto auto
Spese condominiali
200 euro/mese
Classe Energetica
APE: D - 224.88 Kwh/m2a
Fenice sas di Daniele Fierro & C.

02 83552331

  Dichiaro di aver letto e compreso l'Informativa privacy
Indirizzo
Piazza Tricolore, 20
20030 Senago (MI)
Telefono
02 83552331
WhatsApp
0283552331
Email:
senago@fondocasa.it

Caratteristiche

Dimensione
80 m2
Camere
2
Bagni
1
Box/Posto auto

Descrizione immobile

Fondocasa Senago propone in vendita un ampio Tre locali di 80 mq con due cantine!

INFORMAZIONE DI VALORE:
Sappiamo che la vera paura è vendere la tua casa e poi non riuscire a trovare una nuova abitazione. Ma con il nostro supporto, non solo potrai vendere la tua casa con successo, ma ti aiuteremo a garantire una transizione senza problemi, in modo che non dovrai mai preoccuparti di rimanere senza una casa. Contattaci e scopri come possiamo rendere questo processo sicuro per te.

UBICAZIONE E CONTESTO:
Situato nel semicentro di Sesto San Giovanni, questo appartamento in contesto residenziale degli anni '60 è ben servito nelle vicinanze da molte attività essenziali quali supermercati, farmacie, banche, poste, uffici comunali, parchi, scuole, a soli 10minuti a piedi dalla fermata della metro Sesto 1° Maggio.
È sicuramente l'opportunità che stavi cercando, non fartela scappare!


CARATTERISTICHE:
Entrando troviamo un disimpegno, ampio soggiorno, una cucina abitabile, un bagno finestrato con vasca/doccia, una camera matrimoniale e un'ulteriore camera con balcone. La pavimentazione è in parquet in tutta la soluzione tranne in bagno dove troviamo la ceramica, gli infissi sono in Pvc/doppio vetro effetto legno e la porta d'ingresso è blindata.

Il riscaldamento è centralizzato ed è presente l'impianto di aria condizionata con pompa di calore nel soggiorno.

Completano la soluzione un posto auto e due cantine!


LE NOSTRE CASE SONO TUTTE IN ESCLUSIVA! LE VEDI SOLO CON NOI!
Se sei interessato, non esitare a contattarci per fissare un appuntamento o per ulteriori informazioni al numero 02-83552331, indicando il riferimento RIF. NE092

Dove si trova l'immobile?






Altri immobili proposti dall'agenzia

VENDITA

R0006 - Appartamento

160.000 €
Superficie
78 m2
Bagni
1
Camere
2
Box/posto auto
1
Dettagli immobile
VENDITA

R0190 - Appartamento

145.000 €
Superficie
64 m2
Bagni
1
Camere
1
Box/posto auto
1
Dettagli immobile
VENDITA

N0153 - Appartamento

135.000 €
Superficie
73 m2
Bagni
1
Camere
2
Box/posto auto
0
Dettagli immobile