Cordenons

via Bellasio, 125

Richiesta: 180.000 €

Dettagli immobile

Riferimento
F63-3353
Contratto
VENDITA
Categoria
Appartamento
Comune
Cordenons (PN)
Stato
Buone condizioni
Riscaldamento
Autonomo
Piano
Piano terra su 1
Terrazzo/Balcone
No
Box/Posto auto
Spese condominiali
10 euro/mese
Classe Energetica
APE: E - 129.87 Kwh/m2a
Intercase s.a.s.

0434241435

  Dichiaro di aver letto e compreso l'Informativa privacy
Indirizzo
VIALE DANTE, 48
33170 PORDENONE (PN)
Telefono
0434241435
WhatsApp
3397433865
Email:
pordenone@fondocasa.it

Caratteristiche

Dimensione
160 m2
Camere
2
Bagni
2
Box/Posto auto

Descrizione immobile

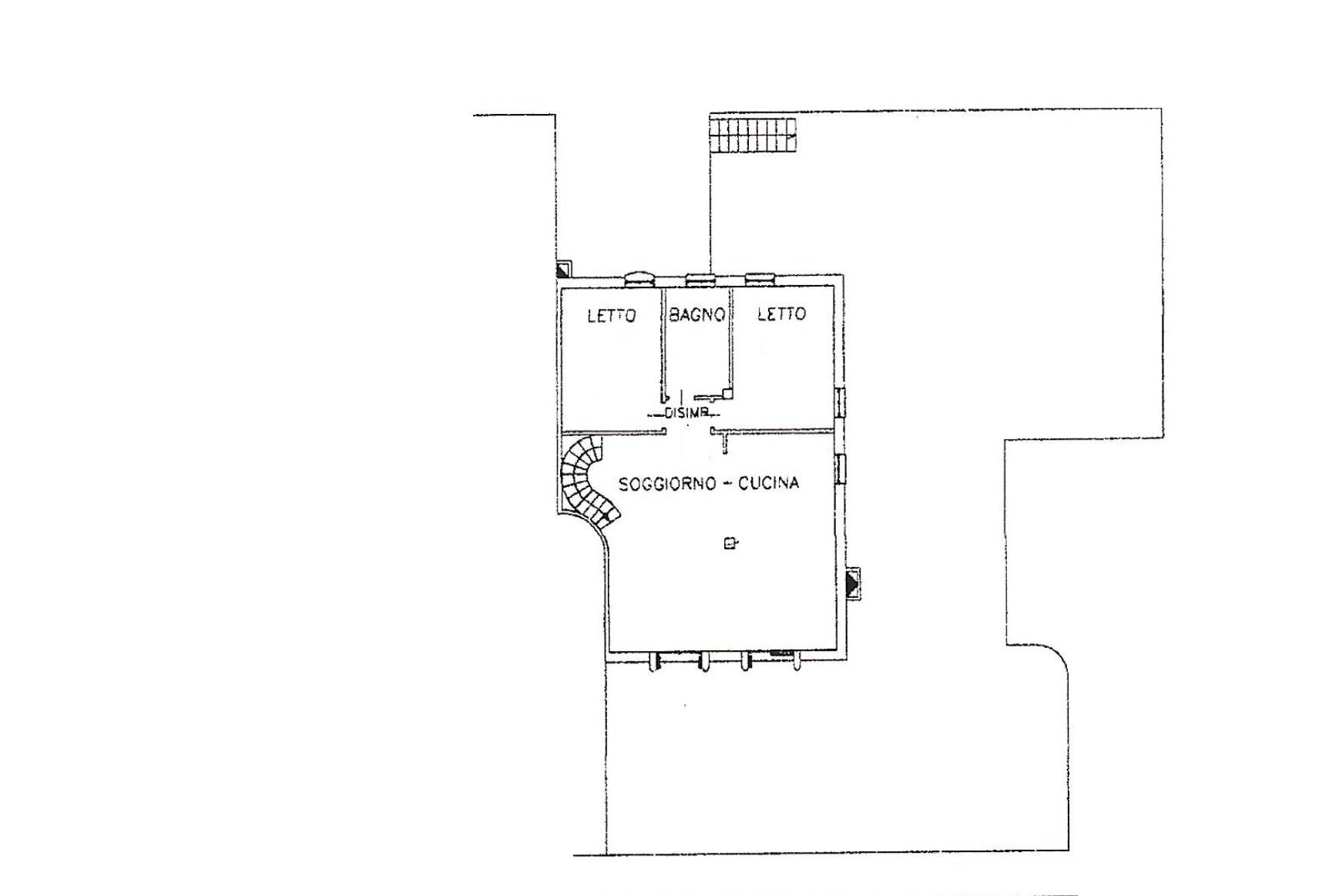
Cordenons zona Bellasio, appartamento indipendente al piano terra con giardino privato. Ampia metratura e buona disposizione degli spazi. Composto da ingresso su comodo soggiorno con zona pranzo e cucina abitabile parzialmente separata, disimpegno, due camere matrimoniali e bagno con doccia. Direttamente accessibile dal soggiorno ampia taverna dotata di stufa e predisposizione per la cottura con uscita in giardino terrazzato, corridoio attrezzato, bagno, lavanderia con centrale termica, ampio garage. Costruzione fine anni '90 con alcune manutenzioni da eseguire. Zona tranquilla e servita.

Dove si trova l'immobile?





Video immobile


Altri immobili proposti dall'agenzia

VENDITA

F63-3317 - Appartamento

190.000 €
Superficie
57 m2
Bagni
1
Camere
2
Box/posto auto
1
Dettagli immobile
VENDITA

F63-3355 - Locale Commerciale

145.000 €
Superficie
233 m2
Bagni
1
Camere
0
Box/posto auto
0
Dettagli immobile
VENDITA

F63-3210 - Rustico-Casale-Corte

70.000 €
Superficie
430 m2
Bagni
0
Camere
0
Box/posto auto
0
Dettagli immobile