Loano

Via D'Annunzio, 10 A

Richiesta: 48.000 €

Dettagli immobile

Riferimento
2103
Contratto
VENDITA
Categoria
Box-Posto auto
Comune
Loano (SV)
Stato
Ottime condizioni
Piano
Interrato su 2
Terrazzo/Balcone
No
Classe Energetica
APE: - 0 Kwh/m2a
G. e G. s.a.s

019 675513

  Dichiaro di aver letto e compreso l'Informativa privacy
Indirizzo
Via Garibaldi, 122
17025 Loano (SV)
Telefono
019 675513
WhatsApp
3470977359
Email:
loano@fondocasa.com

Caratteristiche

Dimensione
20 m2
Camere
0
Bagni
0
Box/Posto auto
No

Descrizione immobile

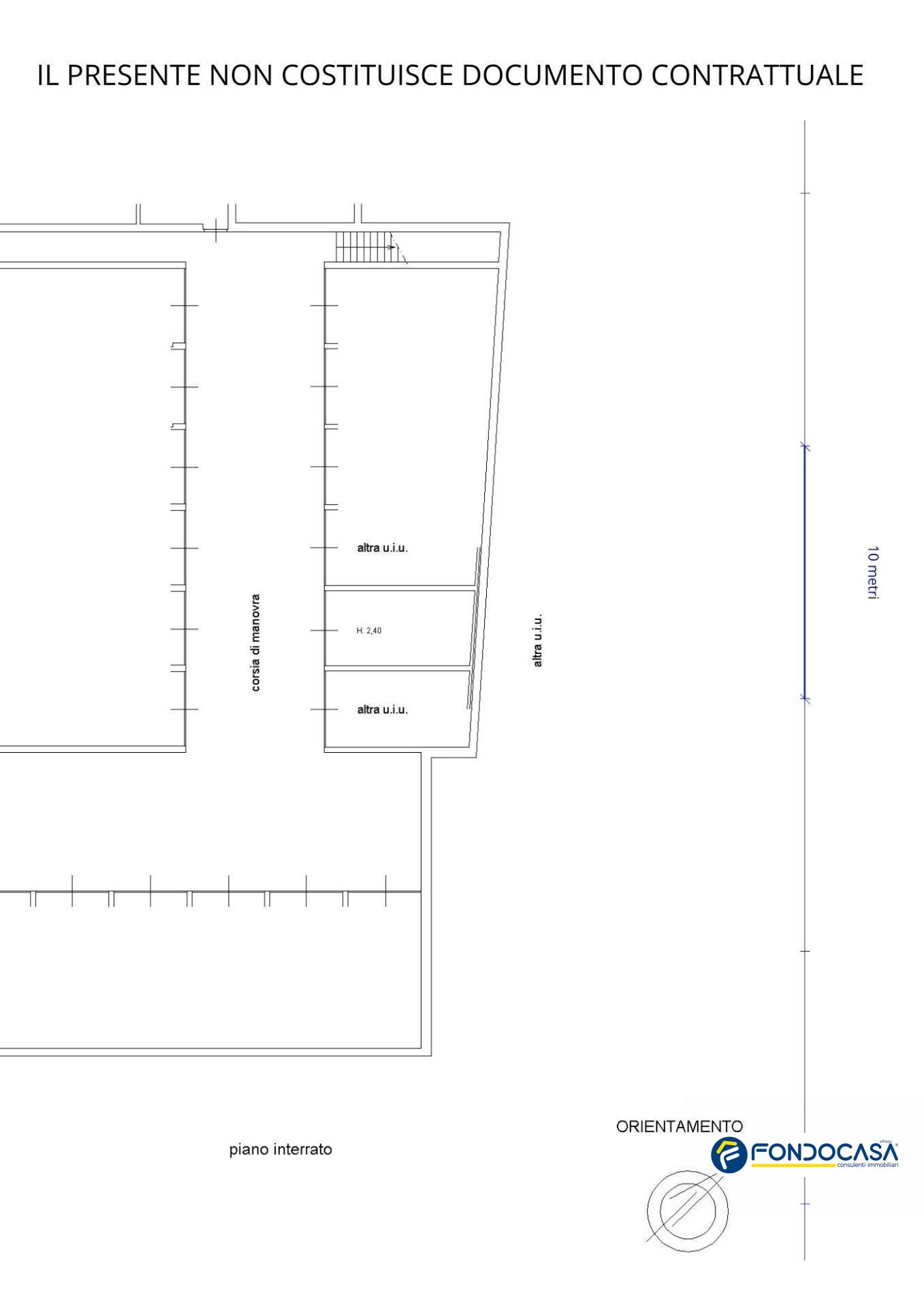
AMPIO BOX AUTO DI RECENTE REALIZZO IN ZONA POETI

A soli 400 mt dal mare, in zona strategica per raggiungere a piedi ed in breve tempo sia il centro che le spiagge, proponiamo ampio box auto di recente realizzo.

Con una superficie totale di 18 metri quadrati calpestabili è ideale per ospitare un'auto e altri oggetti di uso quotidiano.
Lo stato di conservazione è ottimo, con pavimentazione in cemento liscio e basculante in perfette condizioni.

Grazie alla sua posizione al piano interrato, offre sicurezza e privacy, oltre a essere facilmente accessibile.
La sua metratura è perfetta per soddisfare le esigenze di chi cerca uno spazio per riporre auto, moto, biciclette o altri oggetti ingombranti.

MISURE INTERNE: 5,70 mt x 3,05 mt

Con bassi costi di gestione ed un'ottima area di manovra di 5,60 mt.

Una soluzione ideale per chi desidera una comoda e funzionale area di parcheggio in una zona centrale e ben servita della città.
Inoltre il complesso in cui è ubicato ha accesso sia da Via Gabriele D'Annunzio che da Via Giovanni Boccaccio.

Non perdere l'opportunità di acquistare questo ampio box auto e in una zona rinomata di Loano.

Dove si trova l'immobile?


Altri immobili proposti dall'agenzia

VENDITA

1146 - Magazzino

39.500 €
Superficie
25 m2
Bagni
1
Camere
0
Box/posto auto
0
Dettagli immobile
VENDITA

19143 - Appartamento

310.000 €
Superficie
55 m2
Bagni
1
Camere
1
Box/posto auto
1
Dettagli immobile
VENDITA

19112 - Box-Posto auto

39.000 €
Superficie
18 m2
Bagni
0
Camere
0
Box/posto auto
0
Dettagli immobile