Cesano Maderno

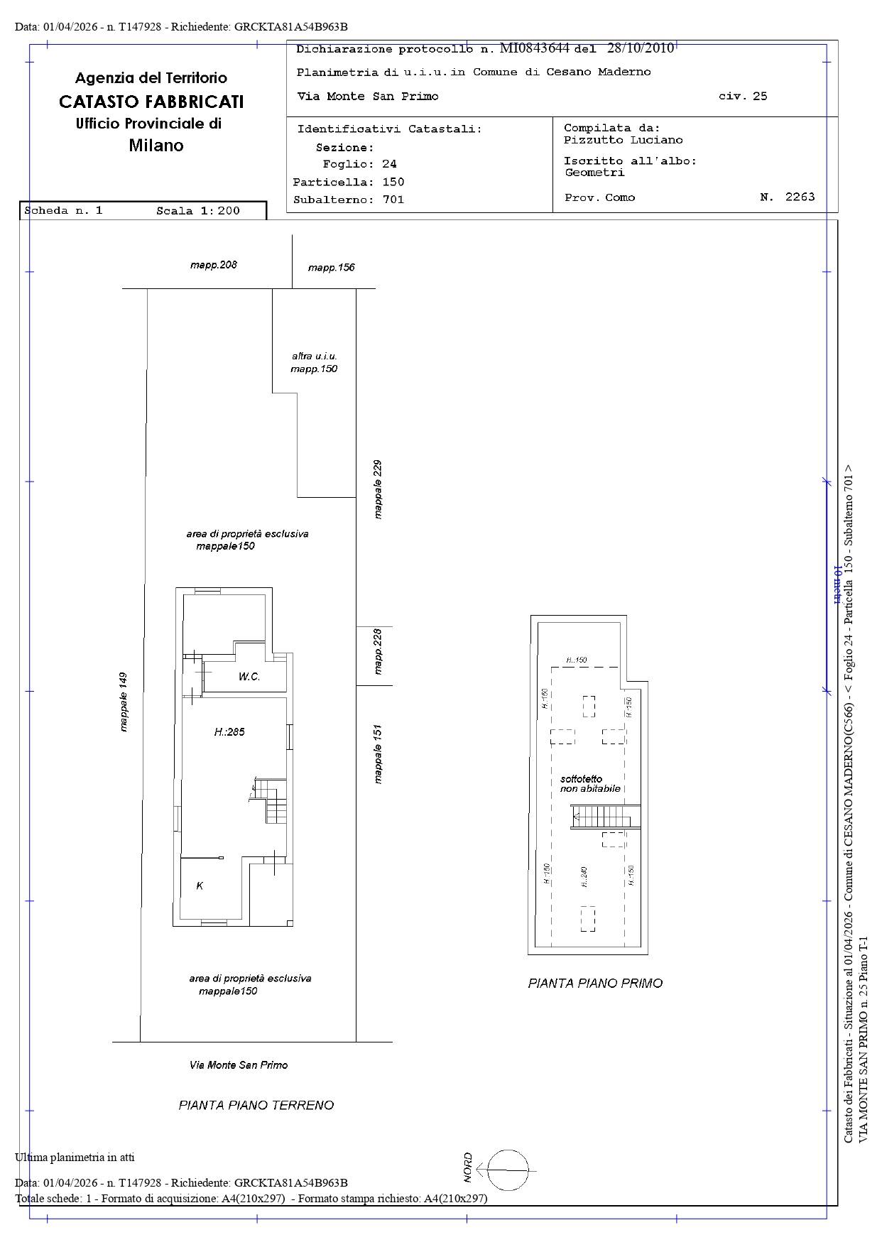
Via Monte San Primo, 25

Richiesta: 295.000 €

Dettagli immobile

Riferimento
CESA25
Contratto
VENDITA
Categoria
Villa singola
Comune
Cesano Maderno (MB)
Stato
Buone condizioni
Riscaldamento
Autonomo
Terrazzo/Balcone
No
Box/Posto auto
Classe Energetica
APE: E - 210.72 Kwh/m2a
Sesto centro sas

02 36531630

  Dichiaro di aver letto e compreso l'Informativa privacy
Indirizzo
Piazza Petazzi, 20
20099 Sesto San Giovanni (MI)
Telefono
02 36531630
Email:
sestosangiovanni@fondocasa.it

Caratteristiche

Dimensione
105 m2
Camere
2
Bagni
2
Box/Posto auto

Descrizione immobile

In tranquilla zona residenziale di Cesano Maderno, proponiamo villa indipendente disposta su due livelli, caratterizzata da spazi ben distribuiti, elevata privacy e ottime dotazioni. L´ingresso si apre su una ampia e luminosa zona living, ideale per accogliere e vivere momenti conviviali, impreziosita da pavimentazione in gres porcellanato, con cucina adiacente funzionale e ben organizzata. Il piano terra ospita inoltre un bagno finestrato completo di vasca e doccia e una comoda zona cabina armadio, perfetta come spazio guardaroba o area di servizio. Salendo al piano primo mansardato/sottotetto, dedicato alla zona notte, troviamo due camere da letto e un secondo bagno; gli ambienti sono valorizzati da pavimentazione in parquet, che conferisce calore ed eleganza. L´abitazione è dotata di infissi in legno con doppio vetro, persiane e tende da sole esterne, garantendo comfort abitativo e un ottimo isolamento. Presenti inoltre impianto di aria condizionata e sistema di allarme, a completamento di una soluzione sicura e moderna. La proprietà si completa con un ampio giardino privato, ideale per il relax all´aperto e per famiglie con bambini, e con un box auto di 29 mq, spazioso e adatto anche come area deposito. Soluzione ideale per chi è alla ricerca di indipendenza, tranquillità e spazi esterni, senza rinunciare alla comodità dei servizi cittadini.

Dove si trova l'immobile?






Altri immobili proposti dall'agenzia

VENDITA

lucu - Appartamento

285.000 €
Superficie
115 m2
Bagni
2
Camere
3
Box/posto auto
0
Dettagli immobile
VENDITA

SEVESO13 - Appartamento

169.000 €
Superficie
91 m2
Bagni
2
Camere
1
Box/posto auto
1
Dettagli immobile
VENDITA

BOXMARX185 - Box-Posto auto

18.000 €
Superficie
13 m2
Bagni
0
Camere
0
Box/posto auto
0
Dettagli immobile