Dettagli immobile
- Riferimento
- 183
- Contratto
- VENDITA
- Categoria
- Casa indipendente
- Comune
- Maglie (LE)
- Stato
- Da ristrutturare
- Piano
- Piano terra su 2
- Terrazzo/Balcone
- No
- Classe Energetica
- APE: - 0 Kwh/m2a
- Indirizzo
- Via Vittorio Emanuele III, 158
72100 SAN CESARIO DI LECCE (LE) - Telefono
- 08311970092
- Email:
- sancesario@fondocasa.it
Caratteristiche
Dimensione
Camere
Bagni
Box/Posto auto
Descrizione immobile
PUGLIA - SALENTO - LECCE - Maglie
A Maglie, a pochi passi dal centro ed in una zona ben servita, proponiamo in vendita una casa indipendente dalle ampie dimensioni e con molte possibilità di personalizzazione.
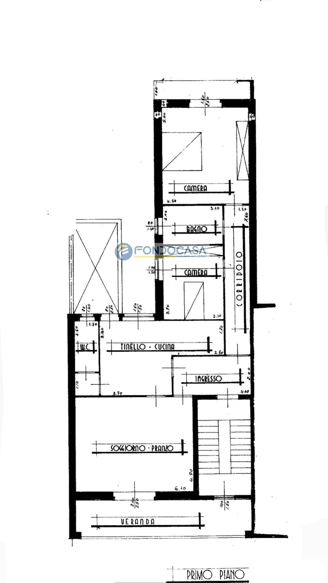
Si sviluppa su due livelli, per un totale di circa 250 mq calpestabili, di cui 130 mq circa al piano terra e 120 mq circa al piano primo; ciò significa che c'è ampio spazio per ospitare una famiglia numerosa o per creare più soluzioni abitative indipendenti. All'interno si trovano ben 13 locali, perfetti per creare diverse zone adibite a uffici, sale studio o stanze da letto.
Attualmente al piano terra, che è totalmente da ristrutturare, abbiamo due soluzioni indipendenti che potrebbero essere unificate, dove troviamo un ampio salone, tre camere da letto, un bagno, un soggiorno ed una cucinotto, completa la proprietà un giardino retrostante di 60 mq circa. Al piano primo si accede da un portone e da una scala, che porta sino al lastricato solare, indipendenti dal piano terra; qui troviamo un ingresso, un lungo corridoio che porta al bagno ed alle due camere da letto di cui l´ultima con balcone. Sempre dal vano ingresso si accede alla zona giorno composta da un luminoso salone con ampio balcone di circa 10 mq, sala da pranzo con terrazza a livello di circa 20 mq ed un piccolo ripostiglio; grazie agli ampi spazi è possibile aggiungere altre camere o bagni senza problemi. Il piano primo, di circa 120 mq totali, necessita di una ristrutturazione leggera rispetto al piano terra.
I due piani totali offrono la possibilità di avere due soluzioni abitative indipendenti, ideali per ospitare ospiti o per creare un'area riservata per sé. In conclusione, questa villa in vendita a Maglie rappresenta un'opportunità unica per chi cerca un immobile spazioso, con molte possibilità di personalizzazione e in un'ottima posizione.
Dove si trova l'immobile?

Altri immobili proposti dall'agenzia
194 - Appartamento
- Superficie
- 148 m2
- Bagni
- 2
- Camere
- 3
- Box/posto auto
- 1
196 - Appartamento
- Superficie
- 190 m2
- Bagni
- 2
- Camere
- 2
- Box/posto auto
- 0
184 - Appartamento
- Superficie
- 160 m2
- Bagni
- 2
- Camere
- 4
- Box/posto auto
- 0