Milano

VIA PADOVA, 353

Richiesta: 370.000 €

Dettagli immobile

Riferimento
PADOVA353
Contratto
VENDITA
Categoria
Appartamento
Comune
Milano (MI)
Stato
Ottime condizioni
Riscaldamento
Centralizzato
Piano
5 su 6
Ascensore
Terrazzo/Balcone
Spese condominiali
210 euro/mese
Classe Energetica
APE: A3 - 0 Kwh/m2a
Sesto centro sas

02 36531630

  Dichiaro di aver letto e compreso l'Informativa privacy
Indirizzo
Piazza Petazzi, 20
20099 Sesto San Giovanni (MI)
Telefono
02 36531630
Email:
sestosangiovanni@fondocasa.it

Caratteristiche

Dimensione
108 m2
Camere
3
Bagni
2
Box/Posto auto
No

Descrizione immobile

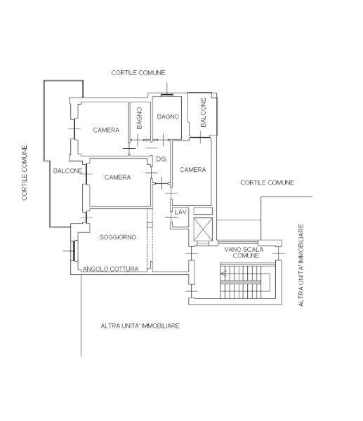
Fondocasa propone in vendita un ampio appartamento di quattro locali di circa 110 mq, situato al quinto piano di una palazzina signorile con ascensore e servizio di portineria attivo tutto il giorno.

L'immobile è composto da un comodo ingresso, un luminoso soggiorno con cucina a vista e accesso al primo grande balcone, un pratico ripostiglio, due spaziose camere da letto matrimoniali, una cameretta con accesso al secondo balcone e due bagni con box doccia (uno finestrato).

L'appartamento è dotato di serramenti in doppio vetro/PVC, porte interne in legno, pavimenti in gres porcellanato effetto legno, riscaldamento centralizzato con termovalvole e climatizzazione autonoma.
Completa la proprietà una cantina di circa 5 mq.

È disponibile la possibilità di acquistare separatamente un box singolo.

La posizione è strategica, a soli 5 minuti a piedi dalla fermata MM2 Cascina Gobba e ben servita dai mezzi pubblici. Nelle immediate vicinanze si trova l'Ospedale San Raffaele. Ideale per chi cerca una soluzione comoda per gli spostamenti e vicina ai servizi. Contattaci per maggiori informazioni e per fissare una visita al 0236687333 oppure via e-mail all'indirizzo cinisellobalsamo@fondocasa.it.

Dove si trova l'immobile?






Altri immobili proposti dall'agenzia

VENDITA

RAVASI95 - Appartamento

149.000 €
Superficie
45 m2
Bagni
1
Camere
1
Box/posto auto
0
Dettagli immobile
VENDITA

NIE25 - Appartamento

155.000 €
Superficie
49 m2
Bagni
1
Camere
1
Box/posto auto
0
Dettagli immobile
VENDITA

MORG54G - Appartamento

229.000 €
Superficie
90 m2
Bagni
1
Camere
2
Box/posto auto
0
Dettagli immobile