Dettagli immobile
- Riferimento
- 649
- Contratto
- VENDITA
- Categoria
- Appartamento
- Comune
- Milano (MI)
- Zona
- Porta Romana
- Stato
- Buone condizioni
- Riscaldamento
- Centralizzato con contabilizzatore
- Piano
- 2 su 6
- Ascensore
- Sì
- Terrazzo/Balcone
- Sì
- Spese condominiali
- 200 euro/mese
- Classe Energetica
- APE: D - 175 Kwh/m2a
- Indirizzo
- Viale Monte Nero, 7
20135 MILANO (MI) - Telefono
- 02 61291273
- Email:
- milano1@fondocasaexclusive.it
Caratteristiche
Dimensione
Camere
Bagni
Box/Posto auto
Descrizione immobile
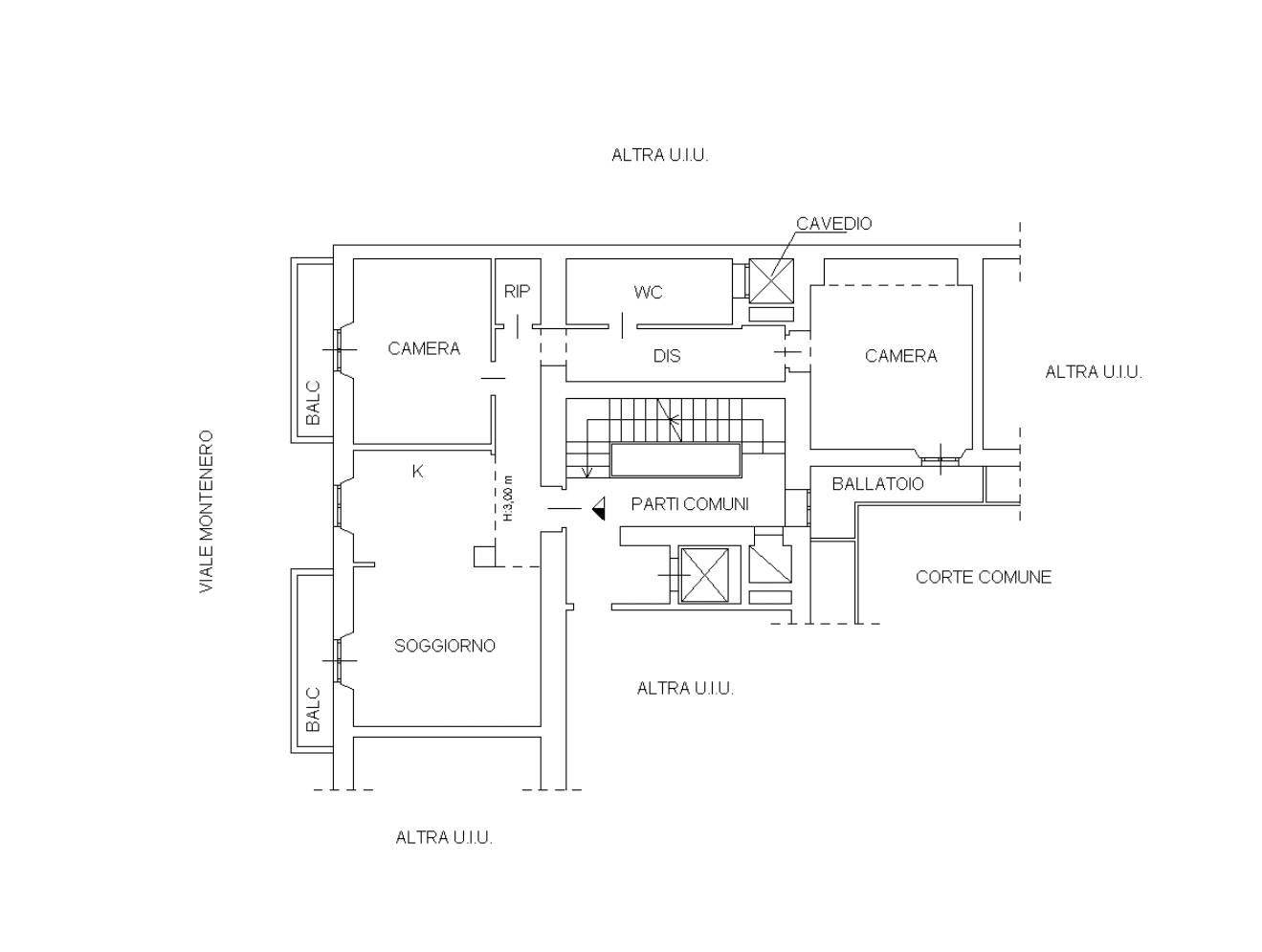
Elegante Trilocale con balconi in Porta Romana
In vendita ora in una delle zone più richieste della città, un bellissimo appartamento nei pressi della piazza Medaglie d'Oro che combina lo charme tradizionale e la comodità di uno dei quartieri più prestigiosi della città.
L'immobile è situato in uno dei stabili più belli della zona e molto ben tenuto. Ubicato al piano secondo e composto da ingresso su soggiorno con balcone e affaccio su v.le Monte Nero, cucina attualmente parte del soggiorno offre uno spazio aperto e conviviale, ma all'occorrenza potrà essere divisa e resa separata dal soggiorno grazie alla presenza dell'aero illuminazione necessaria. Due camere spaziose ognuna con il proprio balcone perfette per chi ama la luce naturale e l'aria fresca, un ampio bagno funzionale con box doccia.
L'appartamento è rivestito da parquet in tutti gli ambienti, che dona un tocco di eleganza e calore. Predisposizione per impianto di condizionamento e finiture di pregio. Completa questa proprietà una comoda cantina.
L'immobile è stato recentemente messo in vendita ed è in ottime condizioni, non necessita di ristrutturazione, salvo una personalizzazione secondo i propri gusti. Un gioiello urbano da non lasciarsi sfuggire.
Disponibile subito.
Classe Energetica:D
EPI: 175, kWh/m² anno
Certificato di prestazione energetica in corso di validità, disponibile in agenzia.
Contattaci subito per un appuntamento in loco e prendere visione degli spazzi interni e del suo potenziale. Fondocasa Exclusive Viale Monte Nero 7 Milano
Dove si trova l'immobile?

Altri immobili proposti dall'agenzia
647 - Appartamento
- Superficie
- 55 m2
- Bagni
- 1
- Camere
- 1
- Box/posto auto
- 0
653 - Villetta bifamiliare
- Superficie
- 200 m2
- Bagni
- 4
- Camere
- 4
- Box/posto auto
- 1
10 - Appartamento
- Superficie
- 125 m2
- Bagni
- 2
- Camere
- 2
- Box/posto auto
- 0