Civezza

Via Imperia

Richiesta: 195.000 €

Dettagli immobile

Riferimento
CIVEZZA.
Contratto
VENDITA
Categoria
Appartamento
Comune
Civezza (IM)
Piano
2 su 2
Terrazzo/Balcone
Box/Posto auto
Spese condominiali
146 euro/mese
Classe Energetica
APE: - 0 Kwh/m2a
Prestige srl

0107533370

  Dichiaro di aver letto e compreso l'Informativa privacy
Indirizzo
Via Cesarea, 44-46 r
16121 Genova (GE)
Telefono
0107533370
Email:
genova1@fondocasaexclusive.it

Caratteristiche

Dimensione
46 m2
Camere
1
Bagni
1
Box/Posto auto

Descrizione immobile

Agenzia Immobiliare Fondocasa Exclusive, Affiliato di Genova, Via Cesarea, propone in vendita nel Comune di Civezza (Im), immerso negli uliveti dell' Imperiese, caratteristico appartamento con ingresso indipendente, in contesto di recente costruzione (2013), con grande piscina condominiale, box di proprietà e due posti moto coperti.
Il Comune di Civezza, caratteristico borgo medioevale, sito a circa 1,5 Km dal mare, immerso nei magnifici uliveti dell' entroterra imperiese, ospita questo contesto residenziale chiamato "LE ANTICHE TORRI",
Tutti gli appartamenti hanno ingresso indipendente che si raggiunge comodamente sia dalla strada di accesso che dalla zona box, dove abbiamo altre al garage di proprietà, due comodi e spaziosi posti moto, dove all' uso si può anche parcheggiare un' auto di piccole dimensioni.
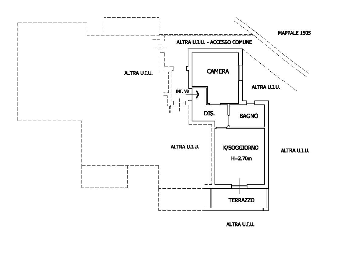
Si accede dall' ingresso, dotato di porta blindata, direttamente alla zona giorno, composta da zona living/ pranzo e cucinotto a vista ed un caratteristi balcone, esposto verso sud ovest da cui si gode di una splendida vista mare e monti.
Adiacente alla zona giorno troviamo il bagno, con doccia ed una spaziosa camera da letto matrimoniale.
La modernità del progetto fa si che la classe energetica sia molto performante, posizionata in CLASSE "A".
Il riscaldamento è autonomo a pompe di calore caldo/freddo, l' acqua calda prodotta da pannelli solari con contabilizzatori di consumo, coadiuvato da un piccolo boiler elettrico nel caso non si volesse attingere l' acqua calda centralizzata.
Come prima indicato, la proprietà è provvista di un comodo box e due posti moto coperti.
All' interno delle parti condominiali troviamo ampie zone relax attrezzate ed una grande e spettacolare piscina incastonata in prato all' inglese.
Il tutto essendo di recente costruzione si trova in ottimo stato di conservazione e ottimamente mantenuto.
La luce, il silenzio e l' aria buona fanno di questo contesto residenziale una perla incastonata negli ulivi di questa splendida campagna della Liguria.
SE DESIDERI VISIONARE IL FILMATO DELL' IMMOBILE DIGITA IL SEGUENTE LINK: https://youtu.be/eJQvpwmfgFs

Civezza è un incantevole borgo situato nella regione della Liguria, nel nord-ovest dell'Italia. Questo pittoresco villaggio si trova nella provincia di Imperia, una delle otto province della Liguria, ed è posizionato a pochi chilometri dalla costa del Mar Ligure. La sua posizione geografica lo rende una meta ideale per chi desidera esplorare le bellezze naturali e culturali della regione durante le proprie vacanze.
Il borgo di Civezza è arroccato su una collina, offrendo viste panoramiche mozzafiato sulla campagna circostante e sul mare. La sua vicinanza a Imperia, capoluogo di provincia, permette ai visitatori di accedere facilmente a una vasta gamma di servizi e attrazioni turistiche. Inoltre, Civezza è situata a breve distanza da San Lorenzo al Mare, un'altra località costiera rinomata per le sue spiagge e il suo porto turistico.
La posizione di Civezza è particolarmente favorevole per chi ama le attività all'aria aperta. La Liguria è famosa per i suoi sentieri escursionistici che si snodano tra le colline e le montagne, offrendo opportunità uniche per esplorare la flora e la fauna locali. Durante le vacanze a Civezza, gli appassionati di trekking possono avventurarsi lungo i numerosi percorsi che collegano il borgo ai paesi vicini e alle Alpi Liguri.
Grazie alla sua posizione strategica, Civezza è anche un punto di partenza ideale per esplorare altre rinomate destinazioni della Liguria. La regione è famosa per le sue pittoresche cittadine costiere, i borghi medievali e le spettacolari vedute sul mare. Durante le vacanze a Civezza, i visitatori possono facilmente raggiungere le vicine località balneari e godere delle spiagge di sabbia e ciottoli che caratterizzano la costa ligure.
In sintesi, Civezza si trova in una posizione privilegiata nella provincia di Imperia, Liguria, Italia. Questo affascinante borgo collinare offre un perfetto connubio tra bellezze naturali, cultura e storia, rendendolo una destinazione ideale per chi desidera trascorrere le proprie vacanze immerso nella tranquillità e nella bellezza del paesaggio ligure.

Dove si trova l'immobile?






Altri immobili proposti dall'agenzia

VENDITA

Via Pastonchi! - Appartamento

73.000 €
Superficie
65 m2
Bagni
1
Camere
1
Box/posto auto
0
Dettagli immobile
VENDITA

Pietra ligure mediterranee - Stabile-Palazzo

250.000 €
Superficie
45 m2
Bagni
1
Camere
0
Box/posto auto
3
Dettagli immobile
VENDITA

VIA GIORDANO BRUNO. - Appartamento

900.000 €
Superficie
230 m2
Bagni
3
Camere
4
Box/posto auto
1
Dettagli immobile