Bergeggi

piazza xx settembre

Richiesta: 780.000 €

Dettagli immobile

Riferimento
piazza xx settembre Bergeggi
Contratto
VENDITA
Categoria
Appartamento
Comune
Bergeggi (SV)
Stato
Ottime condizioni
Riscaldamento
Autonomo
Terrazzo/Balcone
No
Box/Posto auto
Spese condominiali
100 euro/mese
Classe Energetica
APE: - 0 Kwh/m2a
Prestige srl

0107533370

  Dichiaro di aver letto e compreso l'Informativa privacy
Indirizzo
Via Cesarea, 44-46 r
16121 Genova (GE)
Telefono
0107533370
Email:
genova1@fondocasaexclusive.it

Caratteristiche

Dimensione
180 m2
Camere
4
Bagni
2
Box/Posto auto

Descrizione immobile

AGENZIA IMMOBILIARE FONDOCASA EXCLUSIVE, Affiliato di Genova di Via cesarea, propne in vendita a Bergeggi ultra Signorile Appartamento in villa con giardino, un piccolo angolo di paradiso, dove regnano tranquillità e pace, completamente immerso nella natura e affacciato sul mare di Bergeggi, comodo al centro ed alle splendide spiagge, solo 200 metri di distanza dal mare.
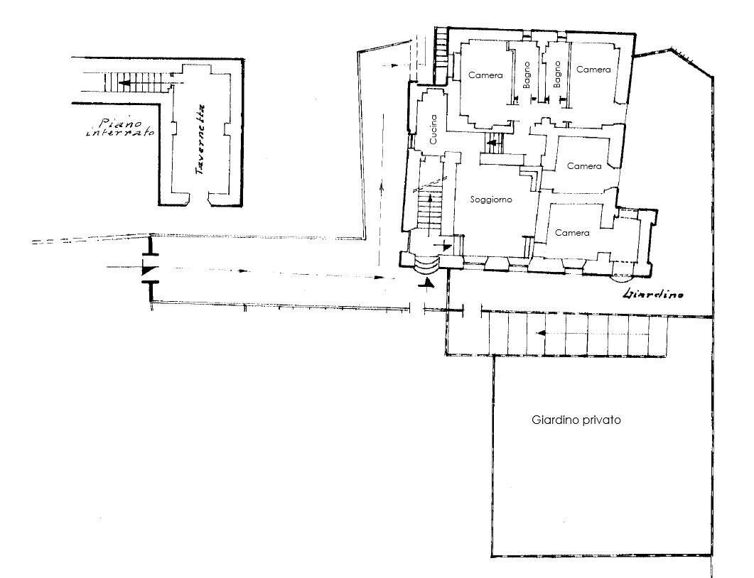
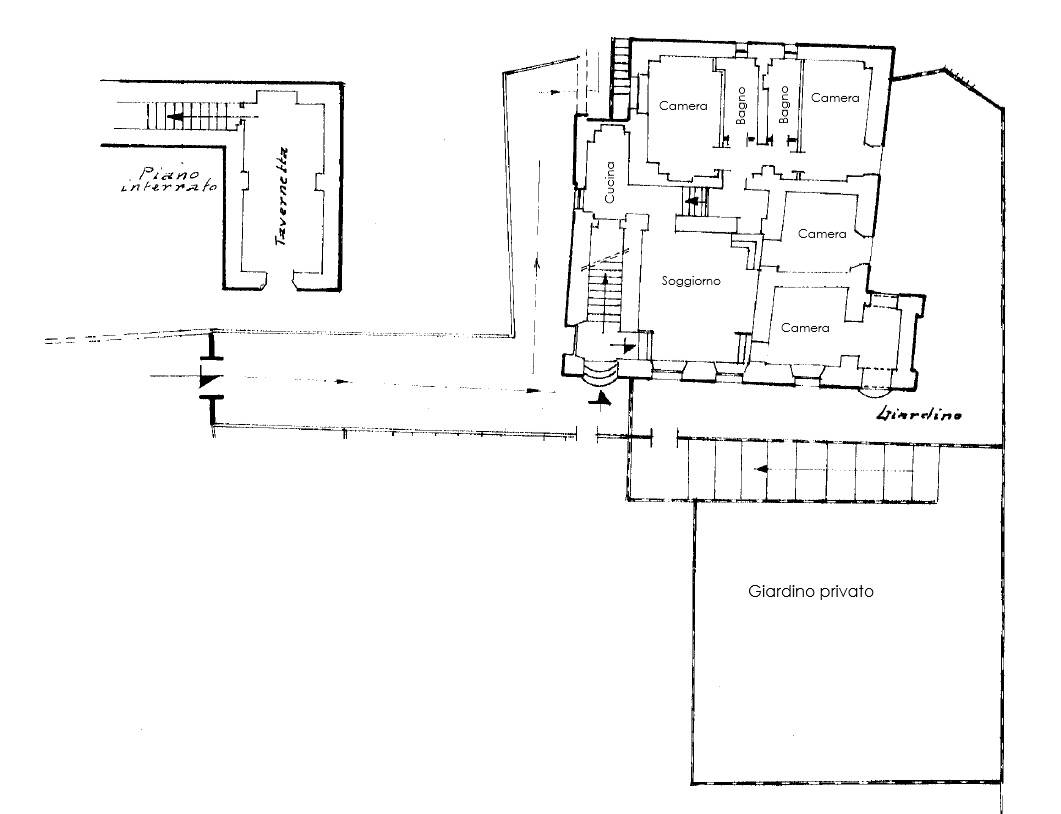
Ci troviamo all' interno di una splendida villa d' epoca, appartamento posto al piano terra, impreziosito da splendidi affreschi e finiture di altissimo pregio.
In questo contesto bucolico, dove il tempo sembra essersi fermato, proponiamo appartamento al piano terra di un edificio storico, caratterizzato da un ampio giardino di oltre 200 mq.
La proposta si compone di un accogliente salone illuminato da due grandi finestre e impreziosito da un bellissimo soffitto affrescato.
Attraverso il soggiorno, si accede alla zona notte costituita da due ampie camere da letto matrimoniali e due bagni finestrati dotati di vasca e doccia.
Dal salone si accede inoltre a due stanze studio, alla cucina abitabile e a una rampa di scale che porta alla tavernetta disposta al piano interrato. Completano la proprietà, due comodi posti auto scoperti.
Un vero e proprio gioiello, posizionato nel cuore di Bergeggi, perfetto sia per l'abitabilità degli spazi interni, ma anche per l'ampiezza degli spazi esterni, curati e organizzati in modo da poter godere sia di zone soleggiate sia di zone all'ombra del secolare Cedro del Libano.
Se sei curioso di scoprire di persona la bellezza di questo immobile, prenota subito un appuntamento.

Dove si trova l'immobile?






Altri immobili proposti dall'agenzia

VENDITA

Via Lorenzo costa. - Appartamento

250.000 €
Superficie
132 m2
Bagni
2
Camere
3
Box/posto auto
0
Dettagli immobile
VENDITA

VIA AYROLI - Appartamento

145.000 €
Superficie
77 m2
Bagni
1
Camere
2
Box/posto auto
0
Dettagli immobile
VENDITA

Via Giuseppe Ratti 34r - Box-Posto auto

39.000 €
Superficie
16 m2
Bagni
0
Camere
0
Box/posto auto
0
Dettagli immobile